Каминная топка EcoKamin Дельта 1000
26160e2cd5c0
Доставка в Екатеринбург
Удобство оплаты
Почему звонить в Очаг уже сейчас?
- Единая цена по всей России
- Бесплатная доставка
- Понимаем любой бюджет
- Считаем ВСЕ варианты
- Инструкции и видео для Монтажа
- Доступно, Оперативно, Профессионально
- Более 2 000 монтажей за 17 лет
Примеры работ #Степан_Знает
Видео галерея
Описание
Характеристики
Общие
Производитель:
Страна-производитель:
Россия
Остекление:
Материал корпуса:
Материал топки:
- Шамот
Конструкция топки:
Боковое стекло:
Нет
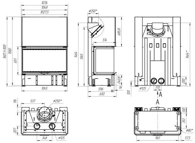
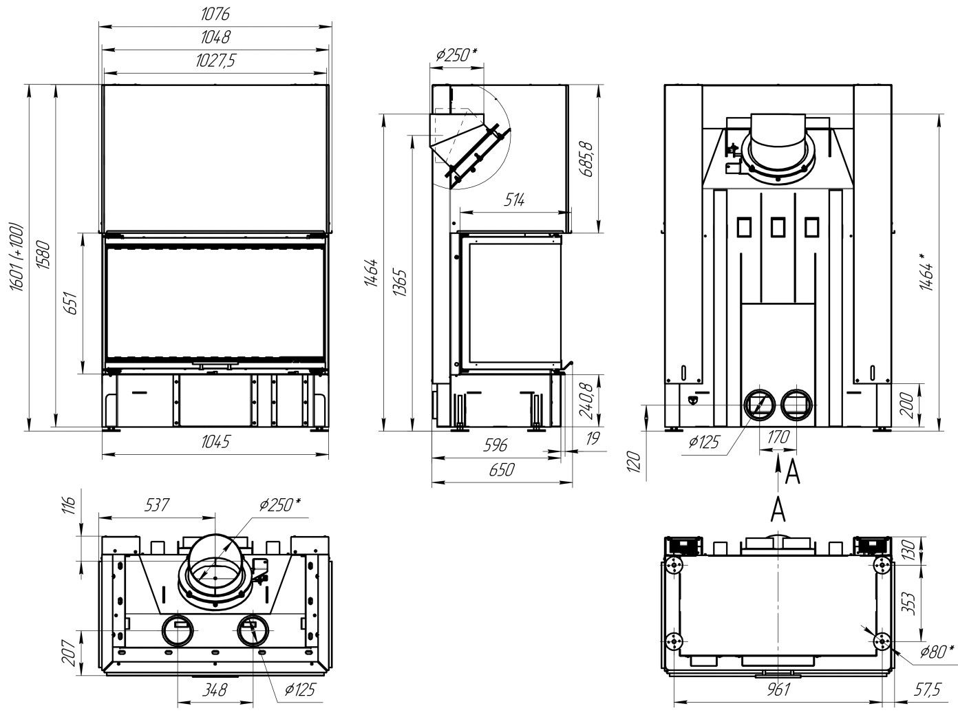
Размеры
Диаметр дымохода:
250 мм
Общая ширина:
1078 мм
Общая глубина:
634 мм
Общая высота:
1695 мм
Общий вес:
445 кг
Высота рамки:
608 мм
Ширина рамки:
1014 мм
Производительность
Мощность:
18 кВт
КПД:
80%
Площадь отопления:
180 м²
Объем отопления:
450 м³
Использование для отопления:












