Каминная топка Hoxter UKA 37/95/37/57h
14bd853d0f83
Доставка в Екатеринбург
Удобство оплаты
Почему звонить в Очаг уже сейчас?
- Единая цена по всей России
- Бесплатная доставка
- Понимаем любой бюджет
- Считаем ВСЕ варианты
- Инструкции и видео для Монтажа
- Доступно, Оперативно, Профессионально
- Более 2 000 монтажей за 17 лет
Примеры работ #Степан_Знает
Видео галерея
Описание
Характеристики
Общие
Производитель:
Страна-производитель:
Чехия
Остекление:
Материал корпуса:
Материал топки:
- Шамот
Конструкция топки:
Стекло с подъемом вверх:
Да
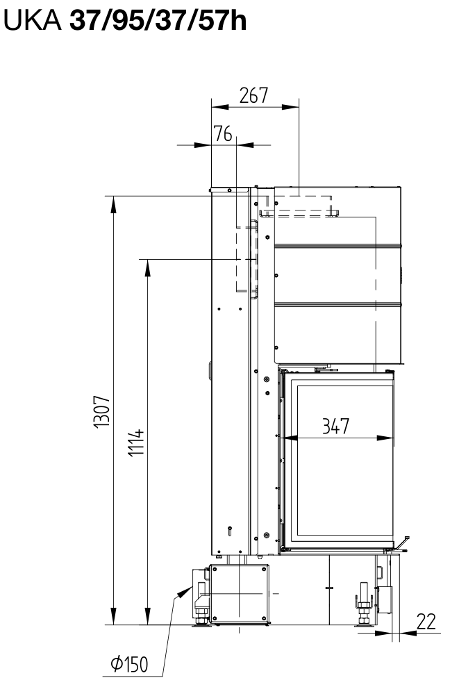
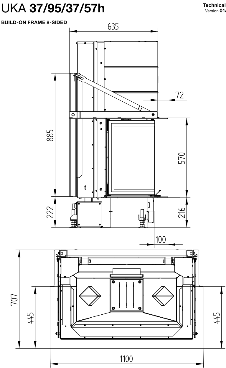
Размеры
Диаметр дымохода:
200 мм
Общая ширина:
955 мм
Общая глубина:
646 мм
Общая высота:
1340 мм
Общий вес:
326 кг
Высота рамки:
582 мм
Ширина рамки:
951 мм
Производительность
Мощность:
13 кВт
КПД:
80%
Площадь отопления:
130 м²
Объем отопления:
325 м³
Использование для отопления:












